Menu
twitter
facebook
google
rss
linkedin
dribbble
pinterest
Interior Home Design
Menu
Home
Search
Home
»
General
»
House Plan Designs
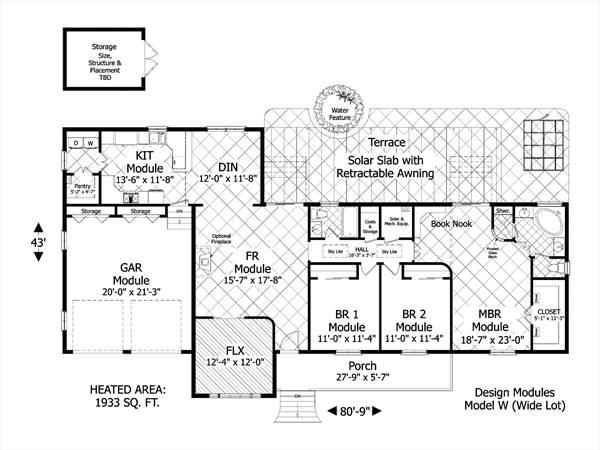
House Plan Designs
House Plan Designs
Next
Newer Post
Previous
Older Post
Top